Théo GANDIA Négociateur
Télécharger la fiche

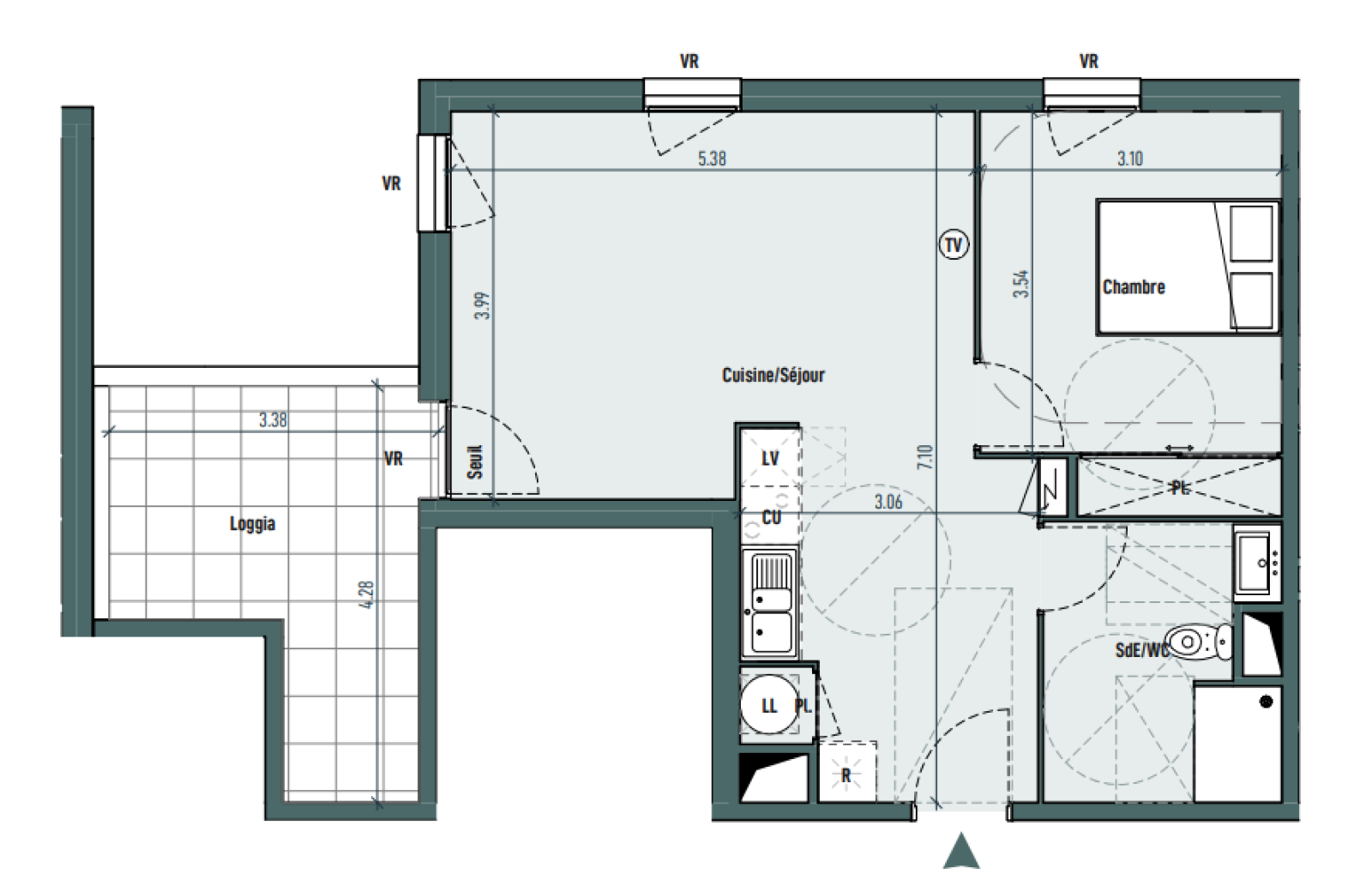
Appartement 2 pièce(s) 1 chambre(s) 50 m²

Gignac (34150)
129 500 € Référence GI596

A propos de ce bien

L'agence SIGNATUR Immobilier vous présente dans cette belle résidence toute neuve, un appartement T2 standing et tout confort à partir de 50m² avec un balcon de 10m² sans vis-à-vis, disponible 4ème trimestre 2026 (il existe aussi des T3 et T4).

 

Situé du 2ème étage avec ascenseur dans la commune de Gignac, proche de toutes commodités, des commerces (supermarchés, restaurants, bars, médical, écoles, crèches, gare...) ainsi qu'à quelques kilomètres du magnifique village Saint-Guilhem-le-Désert et ses alentours sauvages

.

L'appartement se compose d'une belle pièce à vivre de 30m² donnant sur le balcon de 10m², une grande chambre de 12m² avec grands placards équipés, une salle d'eau avec sèche serviette-électrique et un WC.

L'appartement possède de grandes baies vitrées double vitrage, des volets roulants électriques ainsi qu'un ballon thermodynamique pour une excellente économie sur vos charges énergétiques !

Vous profiterez d'une place de parking extérieure et sécurisée dans la résidence.

 

Ne tardez plus ! Pour toutes informations complémentaires, contacter Théo Gandia - Agent commercial immobilier - O7 66 85 08 66 - n°RSAC : 953 872 504 EI

Caractéristiques de ce bien

  • Surface 50 m²
  • carrez 50 m²
  • séjour 30 m²
  • 1 chambre(s)
  • 1 salle(s) d'eau
  • Chauffage individuel : radiateur (electrique)
  • 1 parking(s)
  • 2ème étage
  • 3 étage(s)
  • ascenseur
  • vue Dégagée
  • terrasse
  • interphone

Diagnostics énergétiques

Consommation énergétique
A B C D E F G
Emission de gaz à effet de serre
A B C D E F G
DPE non concerné

Informations financières

Prix de vente 129 500 € Les honoraires d'agence seront intégralement à la charge du vendeur

Informations de copropriété

Copropriété Oui

Autour du bien

  • Commerces et santé
  • Loisirs
  • Ecoles
  • Transports
  • Pratique

Calcul des mensualités

* Champs obligatoires