Théo GANDIA Négociateur
Télécharger la fiche

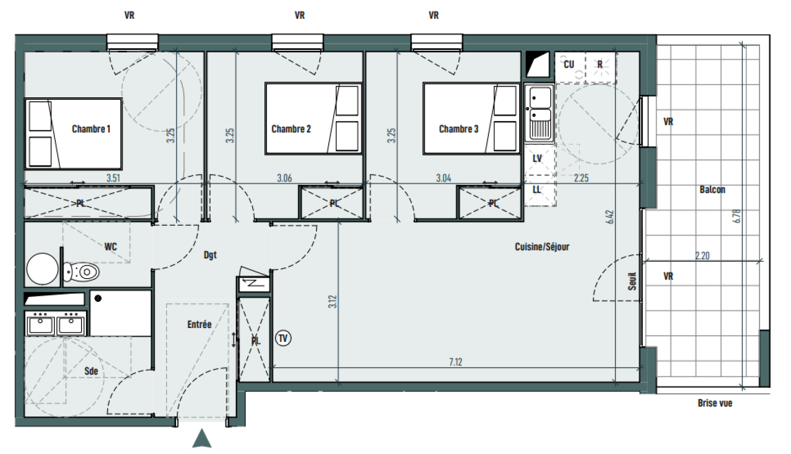
Appartement 4 pièce(s) 3 chambre(s) 78 m²

Gignac (34150)
232 000 € Référence GI948

A propos de ce bien

L'agence SIGNATUR Immobilier vous présente dans cette belle résidence toute neuve, un appartement T4 standing et tout confort à partir de 78m² avec un balcon de 14m² sans vis-à-vis, disponible 4ème trimestre 2026 (il existe aussi des T2 et T3).

 

Situé du 3ème et dernier étage avec ascenseur dans la commune de Gignac, proche de toutes commodités, des commerces (supermarchés, restaurants, bars, médical, écoles, crèches, gare...) ainsi qu'à quelques kilomètres du magnifique village Saint-Guilhem-le-Désert et ses alentours sauvages

.

L'appartement se compose d'une belle pièce à vivre de 30m² donnant sur le balcon de 14m², 3 belles chambres avec placards intégrés de 10m² à 11,50m², une salle d'eau avec sèche serviette-électrique et double vasques puis un WC indépendant.

L'appartement possède de grandes baies vitrées double vitrage, des volets roulants électriques ainsi qu'un ballon thermodynamique pour une excellente économie sur vos charges énergétiques !

Vous profiterez de 2 places de parking extérieures et sécurisée dans la résidence.

 

Ne tardez plus ! Pour toutes informations complémentaires, contacter Théo Gandia - Agent commercial immobilier - O7 66 85 08 66 - n°RSAC : 953 872 504 EI

Caractéristiques de ce bien

  • Surface 78 m²
  • carrez 78 m²
  • séjour 30 m²
  • 3 chambre(s)
  • 1 salle(s) d'eau
  • Chauffage individuel : radiateur (electrique)
  • 2 parking(s)
  • 3ème étage
  • 3 étage(s)
  • ascenseur
  • vue Dégagée
  • terrasse
  • interphone

Diagnostics énergétiques

Consommation énergétique
A B C D E F G
Emission de gaz à effet de serre
A B C D E F G
DPE non concerné

Informations financières

Prix de vente 232 000 € Les honoraires d'agence seront intégralement à la charge du vendeur

Informations de copropriété

Copropriété Oui

Autour du bien

  • Commerces et santé
  • Loisirs
  • Ecoles
  • Transports
  • Pratique

Calcul des mensualités

* Champs obligatoires